Please ensure Javascript is enabled for purposes of website accessibility

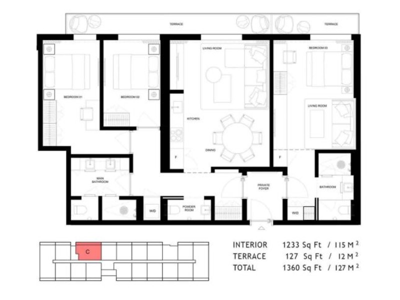
Vida Edgewater Miami Hotel & Residences - Model B

Desde USD 2,195,230

Miami ,33137 ,Florida








Solicita más información

Marysol Osorio

+1 407 989 5939

+1 407 413 4915

Info@marysolosorio.com

EXP Realty

También podría gustarte

The Rider Wynwood - Model C

Desde USD 1,390,000

National Association Realtors

Equal Housing

miami realtors

floridarealtors

Osceola County